Projet en collaboration avec MAP (Mathias Pierre Architecte)
Située dans le bourg de Saint-Briac, la maison prend place au sein d’un tissu bâti environnant composé de maisons de pêcheurs, de maisons de « capitaine » et de maisons néo-bretonnes. Construite dans les années 1970 et de style néo-breton, elle se compose d’un sous sol semi-enterré en pierre de pays, surmonté d’un étage de vie puis d’un niveau de comble aménagés constituant une imposante toiture à lucarnes, couverte d’ardoise.
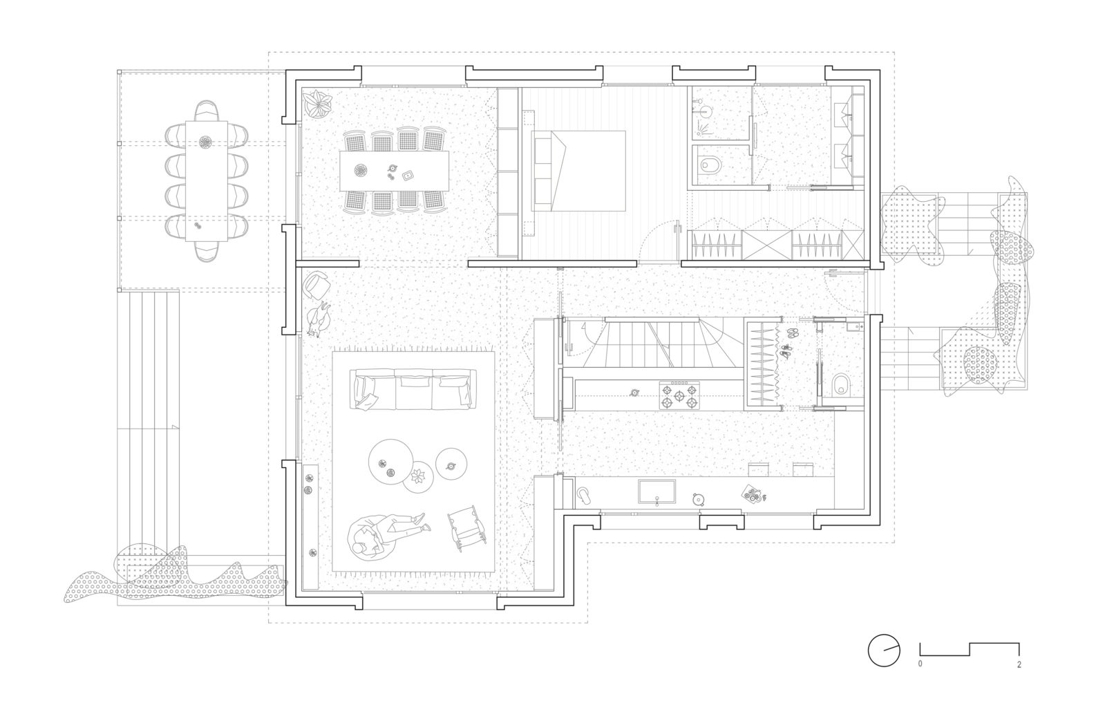
Le projet prévoit une restructuration complète de la maison, incluant une modification des façades et de la toiture, visant à simplifier et moderniser l’aspect rustique de la maison. Les ouvertures de la maison sont simplifiées, agrandies et une fenêtre complémentaire est créée afin que la maison puisse généreusement s’ouvrir sur le jardin paysager et bénéficier des multiples orientations et vues de la maison. Les chainages d’angles et les encadrements pierre des ouvertures sont supprimés afin d’amoindrir le caractère rustique des façades. L’ensemble des façades reçoit un enduit fin taloché de teinte blanc chaud. Pour conserver le même vocabulaire architectural les entourages de fenêtres en pierre sont remplacés par des encadrements maçonnés en surépaisseur, de même teinte que le reste de la façade. Les lucarnes existantes en toitures sont agrandies et modernisées. Les croupes sont supprimées et font place à de larges baies dont les encadrements sont traités en capotage métallique biseauté de teinte gris anthracite. Ce traitement en biseau vise à alléger et affiner la charpente des lucarnes. Une réfection de la couverture ardoise est prévue, les ardoises sont remplacées à l’identiques (ardoise naturelle gris foncé). Les faîtages en tuiles brunes sont remplacés par des pliages de zinc prépatiné anthracite et les gouttières traditionnelles (zinc naturel) sont remplacées par des gouttières nantaises en zinc prépatiné anthracite, afin de s’harmoniser avec la matérialité des encadrements des lucarnes et des huisseries. Le soubassement pierre de la maison est restauré et mis en valeur par son extension au nord et au sud. Il est prolongé coté nord afin d’accueillir la nouvelle entrée de la maison tandis qu’au sud la terrasse existante construite sur un socle en pierre de pays est élargie. Une pergola réalisée sur mesure, en fine structure d’acier thermolaqué de teinte gris clair permet d’ombrager la partie sud-ouest de la terrasse. Elle est couverte d’une treille métallique qui filtre la lumière naturelle.






















